鋼製防音ドア

音響空間に快適な静けさを実現します

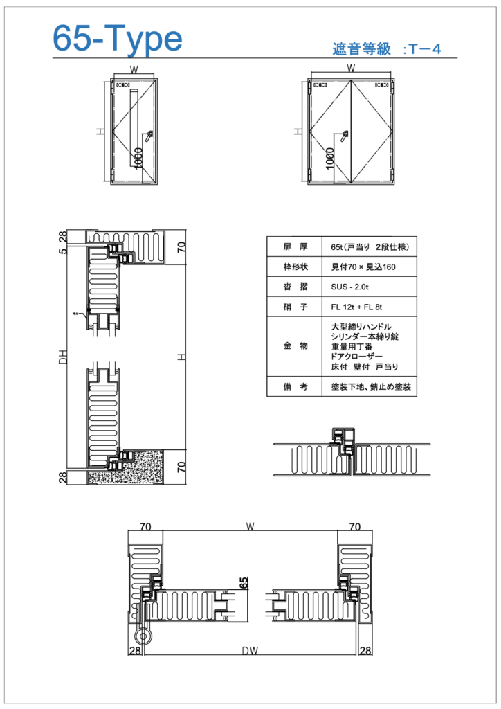
鋼製防音ドア 65-Type

鋼製防音ドア 50-Type

鋼製防音ドア 65M-Type

鋼製防音ドア 50M-Type